Área do Cliente
|
Acesse pelo celular

Casa Comercial - Jardim Marabá Comercial para Locação em Itapetininga

|
Compartilhe:

DISPONÍVEL

Imóvel disponível. Contate-nos pessoalmente para visitá-lo


Aluguel
Comercial
Finalidade
61508
Referência
310.00 m²
A. Terreno
188.00 m²
A. Construída
310.00 m²
A. Útil
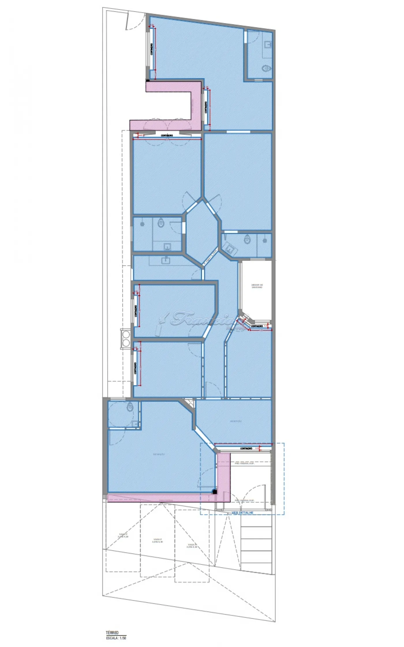
Descrição do Imóvel

Excelente casa comercial em construção!
Perfeita para clínicas, escritórios ou consultórios!

Ambiente amplo e funcional com recepção, copa, 2 banheiros de uso comum, jardim de inverno e 5 salas, sendo 2 suítes com banheiro privativo.
Conta ainda com recuo para 2 carros, proporcionando praticidade no dia a dia.

Espaço moderno, versátil e pronto para receber o seu negócio!

Garanta já seu espaço!

Conheça um pouco mais sobre o bairro: Jardim Marabá

Próximo a Prefeitura Municipal 
Localização Casa / Comercial em Itapetininga

DISPONÍVEL

Imóvel disponível. Contate-nos pessoalmente para visitá-lo



Aluguel

Total / Mês
15.000,00

DÚVIDAS SOBRE O IMÓVEL
PREENCHA O FORMULÁRIO


Concordo com os Termos e Privacidade
Imóveis Similares